399 Milledge Circle
Athens, GA$650k
4 Bedroom, 2 Bath
Located in the heart of five points!
Description
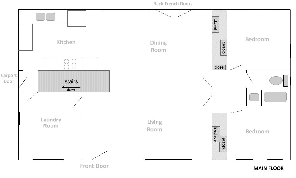
This beautiful 1920’s home sits in the heart of Five Points. Easy walking distance to Five Points and Campus. The home features all original oak hardwood flooring and nice living space throughout. Downstairs there are two bedrooms, bath, dining room, laundry room, living room, and kitchen with sitting area. Upstairs has been completely remodeled with two bedrooms, one office, additional living room, and a bathroom. There is a full cement cellar that can be used for storage. Outside you will find ample roaming space in the large front yard and deep back yard. There is a beautiful pool in the back yard measuring 38 feet long and 18 feet wide with incredible custom brick work all around. A spa is attached with a waterfall that flows into the pool. Near the back of the yard there is a quaint stone bridge leading to a nice grassy area with an optional coy pond. There is a large screened in porch off the back of the house that is perfect for dining and entertaining.
Features
- Premium 5 Points Location
- 4 Bedroom
- 2 Bath
- Extra Large screened in back porch
- Large open main level, kitchen, dining room, living room area
- Remodeled upstairs
- Upgraded black honed granite countertops
- Stainless appliances
- Laundry Room
- 1 Study
- 1 Office
- Original Oak Flooring Throughout
- Large Pool and Spa
- Attached Carport
- Walk in Cellar great for storage





